Wednesday, July 29, 2015

Playing in the dirt

I figured they would knock the forms off and start on the utilities.  They had that and more since the last time we stopped past.  They knocked off the forms, removed the foam indentures, placed gravel and drain pipes, installed the water proofing coating and trenched the path to the street for utilities.  They also back filled the porch and garage with soil and gravel for the base for the basement floor.  I have a feeling they will be pouring the basement floor and maybe the garage floor this week and have the foundation ready for framing the first floor next week.  The email last week from our PM noted that they ordered the framing and should be here next week.  The Landon is moving along.

I did noticed two things that have me kind of concerned.  They are:
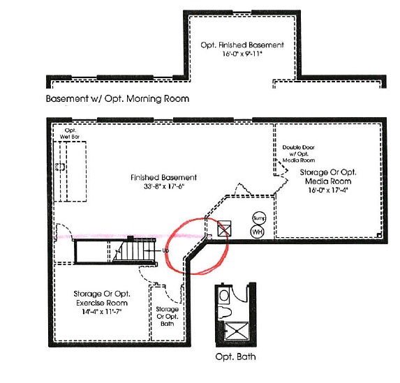
1) The Landon model has a diagonal section of wall in the basement that continues to the first floor.  When they poured the foundation, they did not include this feature.  I'm not sure it's important, but now I wonder how they plan to create the same diagonal wall in the kitchen and great room area where it was a nice neat feature.
2) I see the notch for the I-Beam on the exterior wall but no corresponding notch for the other side.  The wall should have an intent near the missing diagonal wall but it doesn't.  I'm not sure if they are going to brick up a column or cut out a notch.

I have an email to the project manager to ask him what caused this change.  Hopefully the foundation sub didn't mess this up as I'm not sure how they would fix this.

Now times for pictures:

Missing Diagonal

Progress Photos







Monday, July 27, 2015

A house built on Stone

Life has been super busy this past week.  The showings of our house have decreased slightly so we had a chance to put the last minute facelifts on our current home.  We were working hard to prepare the house for an Open House Sunday, so Saturday we took a load of items to storage and stopped past the Landon.  They had done some more work.

The Landon had its foundation walls poured.  The forms were still up and on the walls, but it was exciting to see.  I noticed they use foam blocks to make the required indentures in the foundation.  The I-Beam to support the morning room had foam placed in the concrete.  I also could see where they put foam for the I-Beam for the dining room.  It looks like Landon will also have a few steps from ground level to the front porch and once they put joists on the foundation; I suspect that the floor will be three feet over the ground level.

I also noticed it looked like they didn’t make the diagonal wall section.  I’m not sure what caused it, but will ask our PM this week.  I suspect they will be knocking the forms off today and tomorrow start on the waterproofing and utilities.  I have a good feeling they will have backfill by Saturday.








Lastly, the current home had an open house Sunday.  We spent the last week and all weekend prepping for it.  My fiance is awesome with staging.   She touched up stain on the deck and staged the deck with a dining area.  She also staged the basement and the office.  I even tried to stage the garage and tool bench area.  The open house agent told us we had 10 individuals (couples) look and 4 of them were interested in more.  I think our current home is pretty darn good for a home.  It’s in a great location, has all new kitchen and bathroom.  Selling our home is the last big thing we need to fall in place that we can’t directly control.  Once it’s done, it’s just packing, and waiting for the Landon.


Wednesday, July 22, 2015

Something is a foot

We stopped at the job site pretty stressed out from selling our current home and planned a dinner at our lot.  We stopped and picked up salads and had our first dinner at our house.  We were pleased to find they did some additional work.  Over the past few days, they had installed the forms, poured the footer, installed rebar, and removed the forms.

The footer is ready for foundation wall forms.

We took some pictures and then sat on the morning room footer and had salads talking about our new house.  I have been pretty stressed over selling our current house and juggling all the showings and negative comments that our house is too small.  So Stressful!!!!

A couple of things I noticed on our Landon footer.
1) They have the footer poured with indentures to run a drain through the sides of the porch.  I wish they would have just put the drain around the outside of the porch and waterproofed the porch.  I guess that would create too much surface area and additional cost.  Hopefully not including the porch in the waterproofing doesn't allow water to seep into the porch and crack the foundation there.
2) They did do a riser halfway down the side of the exterior garage wall.  I kind of wished the had the garage foundation the same depth as the house.
3) There is a weird pipe under the foundation in one spot.  I'm assuming it is where the sump pump goes and drains to.  (I have never had a sump pump)







On the current home front, we have been on the market for a week and had a lot of showings.  It's been frustrating hearing the negative feedback on our house.  I have made so many improvements to the house over the years and really made it a lot nicer.  Our current home has a kitchen I remodeled 6 years ago and a bathroom I remodeled early June.  I spent this weekend fixing the hot tub to get it running in hopes that a working hot tub would help sell our current home.  Here is what that looked like:





Friday, July 17, 2015

There is a hole in my heart

We haven't been to out lot since Tuesday and had no clue what's been going on.  Tonight I grabbed the dogs and drove up to see.  From the other blogs I have seen and others time tables, I figured they might have the footer or forms up. They made some progress but not the time schedule others seem to be getting.





Monday, July 13, 2015

Sock it to me

This was a pretty busy weekend.  We put the finishing touches on our current home, sent our realtor pictures, and spent an afternoon with our bridesmaids trying on dresses.  I also took a load of home goods to storage so I stopped past the lot.

Last week they placed the silt socks on the lot.  They were still bundled up on their pallet.  They also added the basement window well and window.  Our project manager emailed us on Friday that they arrived and things would start this week.  He didn't state when they would dig a hole but we suspect they are digging today.  Hopefully the rain in Pittsburgh will cease for a few days so the concrete can be poured and set.  My goal is to be onsite to check out the foundation before they back fill.

Here are our Silt Socks (look how fast the homes behind us are being built)


Pittsburgh Ryan Homes Landon Blog

Wednesday, July 8, 2015

I'll wear your colors my dear until you are standing right here.....

Our ground breaking and start of the entire project is the beginning of next week.  I have 5 days to kill and they are flying by.  We are just a few days away from putting our house on the market and I am exhausted from moving our stuff to storage and fixing/cleaning our current home.  I'm done with major fixes and my cleaning is now limited to three areas, the home office, the basement rec room, and the garage.  Hopefully I can bang them out tonight.  My wonderful partner is amazing at staging giving the house a crisp clean updated look.

Here is an example of her work:



I thought I would share the internal colors that my fiance picked out.  I'm pretty useless when it comes to matching colors and interior design.  My idea of a cool house would be one that looks like the inside of the death star from star wars........ergo.....I'm not allowed to pick colors.  We make a pretty good team, I handle the butchy structural stuff and she handles the colors and decoration.

Here is the floor and cabinet color selection:


Lastly, the furries are coming to Pittsburgh.  All I can say is that I LOVE THEM.  Each year I wish I could go check out their convention but each year life chores keep me from it.

Blog to yah later

Monday, July 6, 2015

Let them eat Steak

Our lot had an update from the past few days.  Our lot had stakes placed in the ground.  The red stakes are where the corners of the house will go and the yellow stakes are points to measure from.  The house basically sits in a large box made from 4 yellow stakes.  These stakes were put down with GPS tools.  They will use measurements from these four stakes to know where to dig.  We walked the lot after our pre-con meeting and both of us commented that the house seemed small based on the stakes.  We had our pink champagne and hurried to home depot for house stuff.

Ground breaking will be Monday 7/13.

Post Construction Meeting

On Thursday we met one of our sale reps and our project manager.  Both my partner and I thought our project manager would be older and more experienced.  It sounds like he went through the Ryan Homes project manager training but is struggling with what flexibility he has to bend rules for things I want changed.  Several times now I felt that Ryan Homes beats into their employees "the standard" and doesn't give much room for making the customer happy.  Ultimately I am the one financing and paying for this and I can't comprehend telling an owner "no" for simple requests such as not installing light switches for outlets.  I have heard several times that there is a survey at the end of this build and to let them know prior to the survey if something is going to be below a 10.  At this point I can't consider giving them 10's when Ryan Homes wont ever consider simple requests.

Key Issues:

Switched Outlets - I purchased ceiling light rough ins for every room that doesn't have one.  I have lived in places that have no ceiling light but a switched outlet for a lamp.  I find nothing lights a room like a ceiling light.  Removing the switch and the extra wire to the outlet reduces cost of both material and labor.  I even tried to compromise asking Ryan Homes to put the outlet and ceiling light on the same switch so I could just change the outlet and not be left with a useless switch.  Ryan Homes could have approved my request not to have switched outlets and pocketed the savings and I would be happy.  This issue cost them a perfect score in the client satisfaction survey.

Wire Conduit - I asked for a pipe from the basement to the attic so I can run wire at a later time.  I had an outlet put in the attic so I could put a router up there.  I asked and offered to buy the pipe and the project manager said no.  This is an example of why I suspect our house will be good and nice, but not awesome and great.  They lost some points here on their survey.

Basement Ceiling - I asked for the ceiling not to be finished.  Code requires drywall hung for the occupancy permit but nothing is mentioned on tape and finish.  I made an effort to explain to the PM that mudding it and adding tape will make it messy to remove so I can add lights to the basement when I go to finish it.  Not to mention it will be difficult to reuse the same drywall.  Again I don't feel like the PM tried to understand the reason for the question and if he has any room to bend rules.  Like many other things I hear from Ryan Homes is "no" without a good explanation such as the county requires it.  I left this question not feeling like there is a good reason for them to say no to my request.  A few more points dropped here on their survey due to lack of discussion and supporting their "no"

House Plan - I asked for a copy of the house plans.  He said no he would loose his job.  I know that their plans are trade secrets but I can even get a manual for my car showing all the wiring harness by color.  Here is where Ryan Homes could excel and exceed customer service.  Give a customer a copy of their prints to be more involved.  I'd like to frame mine but now I can't.  Ryan Homes should be relying on their trademark legality to protect their home designs and not stiff their customer for additional documentation for their home.  Disappointing!!

Basement Door - Ryan Homes wont install a welled basement door.  I am pretty sure I have enough drop at ground level that one could be installed on the side and only need three feet of excavation.  Ryan Homes basically said they cause water issue from grass clippings clogging the drain.  Odd as their sister company Heart Homes who uses nearly the same material, labor and designs will do it.

Basement Bathroom rough in - I have a completely unfinished basement.  Moving the basement bathroom would not interfere with any other wall or room.  The only place it can not go is where the furnace and water heater go.  The plumbing in the floor could easily be moved but wont.  Another missed opportunity to increase customer satisfaction with little extra cost.

I know that Ryan Homes is often described as "cookie cutter" homes and I know having consistency in the build process creates efficiency and effectiveness, but ignoring owner requests for simple changes that also saves them money is disheartening.  I think Ryan Homes hires good people and they genuinely care and want to produce a good product, but they are confined by corporate policy.

Here is my pre-con list with responses from the Project Manager.

1)      Structural
a.       Bathroom towel racks, can we put in an extra 2x4 so they don’t just screw into the drywall but wood? RH-No
b.      Can we add an extra support for the TV mount on the wall? Plywood would be fine. RH-Initially no…then ask me again closer to drywall
c.       Down spots & Gutters
                                                               i.      How many drops and where are they located?  (Look for a drop between the garage roof and front porch) RH-The garage drains onto the roof and then uses the porch roof to carry water to the downspot.
                                                             ii.      Where does the gutter drains go?  (Onto ground or drain pipes away from the house) RH-City storm drains
d.      Are the valleys in the roof 2 ft roll roof or aluminum?
                                                               i.      If not, do they put in extra tar paper in the valley? RH-Extra ice and rain protection on the edges and valley’s
e.      Dimensions for the refrigerator insert?  RH-Standard
f.        Porch
                                                               i.      Does the porch have the same foundation as the house or is it not as deep? RH-It will be the same foundation and just as deep as the rest of the house.
                                                             ii.      Does the porch concrete poured on backfilled gravel or corrugated steel sheets? RH-The porch is poured on the fill dirt and gravel as it is safer.
                                                            iii.      Does the porch slope away from the house so water runs off of the porch? RH-Yes
                                                           iv.      Is the porch slab reinforced with rebar? RH-Yes
                                                             v.      LATE ADDITION: (One thing I noticed after the meeting, the porch foundation is not treated or covered with a leak barrier like the rest of the foundation.  I have spoken to a another Ryan Homes owner who noted he only has one leak in his basement and it is where his porch attaches to his house.  I plan to ask if I can coat mine if they do not do it.)
g.       How many I-beams are used in the basement? RH-2 I beams are used with 1 spanning the opening of the morning room and the 2nd spanning the dining room and foyer area.
                                                               i.      Any of the I-Beams need a house jack? RH-2 support posts are added to the I beam between the dining room and great room.  One support is buried in the step wall and the other is in the furnace area.
h.      What sealant is used to coat the outside of the foundation to keep water out? RH-A panel is nailed into the foundation. (LATE ADDITION: I went back on site and looked at a house being built and noted that they DO NOT cover the foundation of the front porch)
i.         Does the roof have a ridge cap vent or soffit vents? RH-Yes to both
j.        Is there any crawl spaces between floor 1 and 2?  RH-No
k.       Is the subfloor tongue and grooved to fit together?  RH-Yes
l.         Subfloor ¾ inch playwood? RH-Yes
2)      Heating/Cooling Systems
a.       External AC Location? (Small yard side) RH-Yes
b.      Will there be two zones for the house? RH-Yes
c.       Does ductwork have baffles to control air flow? RH-Yesvia electronic baffles
d.      While the basement is unfinished, does it have any vents in it? RH-Yes
e.      Does the ventilation consist of ductwork or enclosed walls? RH-All ductwork as enclosed walls leak.  A leak analysis is performed prior to drywall and prior to closing.
f.        Are there any rooms without a vent? RH-No all rooms have vents
3)      Garage
a.       Since we didn’t get the bonus room above the garage, is there space that can be accessed from the garage for storage like attic storage?  RH-The space above the garage is not framed in to support anything like a room as the trusses are not designed or engineered for that.  There is an access panel in the garage to that space and it could be used for light weight storage.
b.      Is the garage door insulated?  RH-No
c.       Can we add insulation to the empty wall in the garage?  RH-I wont tear it down but you will need to have Phil with you.
                                                               i.      (We potentially may add baseboard heat so stored items wont freeze)
d.      How deep is the foundation for the garage? (Same as house or less) RH-It depends on the slope of the lot.  It may be the same as the house foundation or 4 foot.
e.      What is the poured concrete depth of the garage floor? RH- 4 inch concrete floor
4)      Electrical
a.       Are we able to remove standard switch outlets since we have ceiling lights? RH-No they come standard
b.      Do the recessed lighting have transformers in them? RH-No
c.       Will our breaker box have slots open to add additional 30 amp circuits?  RH-Yes
d.      Is our breaker box marked which circuits control what? RH-Yes
e.      Are key systems on their own circuits?
                                                               i.      Heating/Cooling  RH-Yes
                                                             ii.      Fridge RH-Yes
5)      Schedule
a.       Rough outline of the critical path schedule? RH-He can’t print off the schedule from the new system but roughly every sub gets at least one full day in the house.  He projects our closing to be mid October.
b.      What days are we not allowed to visit? RH-Make sure you get approval from the sales rep
                                                               i.      Any OSHA rules we need to follow when on site? RH-hard hat when on site
6)      Basement
a.       Can we move the basement bathroom rough in?  RH-No
b.      How high will the toilet flange be in the basement rough in? RH-The pipe will stick out and you can cut it to the height you’d like.
c.       Can we have the drywall ceiling in the basement not finished? (Hung no mud)  RH-Originally he said no but then when I explained it will make the reuse of that plaster board unusable and a bigger mess when I finished the basement he said he would check.
d.      How tall is the basement ceiling?  (Does it include the I-Beam?) RH-8 foot ceiling and does not include the Ibeam height
e.      How deep(tall) are the basement ceiling joist? RH-standard 12 inch
f.        Will our breaker box be in the basement near the furnace/water heater? RH-Yes
g.       How thick is the poured concrete floor? RH-4 inch thick
h.      There’s absolutely no way to have a basement door?  RH-Absolutely not
7)      2nd floor
a.       Does the Attic drop down in the laundry room? RH-It drop downs in one of the bedrooms but we can check to see if we can move it.
b.      Can we make the walk in closets in the master bedroom the same size?  RH-Yes, the sales person should have already documented it.
c.       Can we add sound proofing to the wall prior to the drywall hanging? (Laundry Room/Bathroom)  RH-Basically he said no they wont do it, but that when they go to hang drywall there they wont tear anything down.
8)      Other
a.       Can we have a copy of our house prints? RH-No, I’d lose my job
b.      Can we get a breakdown of the items and warranties?  RH-All of this will be covered in your new home binder at closing
                                                               i.      Dishwasher
                                                             ii.      Oven
                                                            iii.      Microwave
                                                           iv.      Kitchen Cabinet make and model (For hardware)
                                                             v.      Shingle
                                                           vi.      Windows
                                                          vii.      Furnace/AC
                                                        viii.      Water Heater
c.       Can we have some paint left over in a can for move in bumps? RH-you will get a patch kit
d.      Can we get copies of key documents
                                                               i.      Land survey? RH-At closing
                                                             ii.      Plot Plan? RH-Given at the meeting
                                                            iii.      Circuit Schematic? RH-Nothing to give
e.      Do all vents blow to the outside? RH-yes, and nothing vents to the attic
                                                               i.      Confirm 2nd floor vents don’t vent to the attic
f.        Are the ceilings smooth after drywall? RH-the ceiling is textured and a smooth coat is not an option
g.       What is the grade drop from one side of the house to the other?  RH-Not sure, will know once the grader finishes the plotting
h.      Can we have an empty conduit installed from basement to attic? (Potential Cable/cat5 to other bedrooms)  RH-No
i.         What is done to protect the wood while framing if it rains? RH-Nothing as it promotes mold
j.        Can we have any stone left over?  (To be used on future patio) RH-It gets sent back as it’s the property of the supplier
k.       Kitchen counter top 4 inch lip?????  RH-Yes
l.         Location of external garden hoses and where are the shut off values? RH-one at the back of the house and one on the front opposite corner
m.    Process for home inspection prior to drywall?  RH-Email him
n.      Do you put sealant on the concrete/asphalt in garage, sidewalks, and driveway?  RH-No
o.      Since we close in the fall, when will grass or sod be planted?  RH-We’ll seed it in Oct and it’s a good time to seed
p.      Where does the 2nd floor washer drain to?  RH-Washer drains into it’s separate drain
                                                               i.      (Utility sink or separate drain)

                                                             ii.      Backup floor drain if a leak occurs?  RH-The washer will sit in a pan attached to a drain as well

Wednesday, July 1, 2015

Pre Construction Meeting Checklist

We are about 24 hours from our pre-construction meeting and shortly after that will be the ground breaking.  It has been super busy since our last post.  I have been focusing on getting the old house ready for sale and getting ready for the pre-con meeting.  I even met with my realtor who is excited to list my current house.  My partner is focused on staging the old house and moving our wedding plans ahead.

I spent basically a week working on our items for the pre-con meeting.  I have looked up and consulted many Ryan Home blogs and learned a lot.  I also spent time reading Ryan Home regrets and what people would have changed.  This weekend I thought about my house and the things that irk me and how I want it different.  All things fed into my pre-con meeting questions.  I share this for others who will be building with Ryan Homes.

Enjoy,
M


Pre-Con Meeting
1)      Structural
a.       Bathroom towel racks, can we put in an extra 2x4 so they don’t just screw into the drywall but wood?
b.      Can we add an extra support for the TV mount on the wall? Plywood would be fine.
c.       Down spots & Gutters
                                                               i.      How many drops and where are they located?  (Look for a drop between the garage roof and front porch)
                                                             ii.      Where does the gutter drains go?  (Onto ground or drain pipes away from the house)
d.      Are the valleys in the roof 2 ft roll roof or aluminum?
                                                               i.      If not, do they put in extra tar paper in the valley?
e.      Dimensions for the refrigerator insert?
f.        Porch
                                                               i.      Does the porch have the same foundation as the house or is it not as deep?
                                                             ii.      Does the porch concrete poured on backfilled gravel or corrugated steel sheets?
                                                            iii.      Does the porch slope away from the house so water runs off of the porch?
                                                           iv.      Is the porch slab reinforced with rebar?
g.       How many I-beams are used in the basement?
h.      What sealant is used to coat the outside of the foundation to keep water out?
i.         Does the roof have a ridge cap vent or soffit vents?
j.        Is there any crawl spaces between floor 1 and 2?
k.       Is the subfloor tongue and grooved to fit together?
2)      Heating/Cooling Systems
a.       External AC Location? (Small yard side)
b.      Will there be two zones for the house?
c.       Does ductwork have baffles to control air flow?
d.      While the basement is unfinished, does it have any vents in it?
e.      Does the ventilation consist of ductwork or enclosed walls?
f.        Are there any rooms without a vent?
3)      Garage
a.       Since we didn’t get the bonus room above the garage, is there space that can be accessed from the garage for storage like attic storage?
b.      Is the garage door insulated?
c.       Can we add insulation to the empty wall in the garage?
                                                               i.      (We potentially may add baseboard heat so stored items wont freeze)
d.      How deep is the foundation for the garage? (Same as house or less)
e.      What is the poured concrete depth of the garage floor?
4)      Electrical
a.       Are we able to remove standard switch outlets since we have ceiling lights?
b.      Do the recessed lighting have transformers in them?
c.       Will our breaker box have slots open to add additional 30 amp circuits?
d.      Is our breaker box marked which circuits control what?
e.      Are key systems on their own circuits?
                                                               i.      Heating/Cooling
                                                             ii.      Fridge
5)      Schedule
a.       Rough outline of the critical path schedule?
b.      What days are we not allowed to visit?
                                                               i.      Any OSHA rules we need to follow when on site?
6)      Basement
a.       Can we move the basement bathroom rough in?
b.      How high will the toilet flange be in the basement rough in?
c.       Can we have the drywall ceiling in the basement not finished? (Hung no mud)
d.      How tall is the basement ceiling?
e.      How deep(tall) are the basement ceiling joist?
f.        Will our breaker box be in the basement near the furnace/water heater?
g.       How thick is the poured concrete floor?
h.      There’s absolutely no way to have a basement door?
7)      2nd floor
a.       Does the Attic drop down in the laundry room?
b.      Can we make the walk in closets in the master bedroom the same size?
c.       Can we add sound proofing to the wall prior to the drywall hanging? (Laundry Room/Bathroom)
8)      Other
a.       Can we have a copy of our house prints?
b.      Can we get a breakdown of the items and warranties?
                                                               i.      Dishwasher
                                                             ii.      Oven
                                                            iii.      Microwave
                                                           iv.      Kitchen Cabinet make and model (For hardware)
                                                             v.      Shingle
                                                           vi.      Windows
                                                          vii.      Furnace/AC
                                                        viii.      Water Heater
c.       Can we have some paint left over in a can for move in bumps?
d.      Can we get copies of key documents
                                                               i.      Land survey?
e.      Do all vents blow to the outside?
                                                               i.      Confirm 2nd floor vents don’t vent to the attic
f.        Are the ceilings smooth after drywall?
g.       What is the grade drop from one side of the house to the other?
h.      Can we have an empty conduit installed from basement to attic? (Potential Cable/cat5 to other bedrooms)
i.         What is done to protect the wood while framing if it rains?
j.        Can we have any stone left over?  (To be used on future patio)
k.       Kitchen counter top 4 inch lip?????
l.         Location of external garden hoses and where are the shut off values?
m.    Process for home inspection prior to drywall?
n.      Do you put sealant on the concrete/asphalt in garage, sidewalks, and driveway?
o.      Since we close in the fall, when will grass or sod be planted?
p.      Where does the 2nd floor washer drain to?
                                                               i.      (Utility sink or separate drain)
                                                             ii.      Backup floor drain if a leak occurs?
9)      Confirm Options per Room
a.       Basement-
                                                               i.      Bathroom rough in
b.      Garage-
                                                               i.      Garage door opener
                                                             ii.      Additional outlets
                                                            iii.      Utility sink
c.       Dining room- No Change
d.      Great room-
                                                               i.      Ceiling light rough in
                                                             ii.      4 recessed lights installed
                                                            iii.      Remove switch from outlet
                                                           iv.      Fireplace – Side
                                                             v.      Fireplace stone veneer
e.      Kitchen-
                                                               i.      Extra outlet on the island
                                                             ii.      Extra switched outlet on top of the cabinets
                                                            iii.      Upgraded cabinets
                                                           iv.      Crown Moulding
                                                             v.      Gas range hook up
                                                           vi.      Stainless Steel Appliance
f.        Morning room-
                                                               i.      Moved door to other side of the room
1.       Confirm which way the door swings open
2.       Confirm moved light switches
3.       Confirm basement window placement not near moved door
                                                             ii.      Ceiling fan rough in
                                                            iii.      Remove switch from outlet
g.       Study-
                                                               i.      Ceiling light rough in
                                                             ii.      Remove switch from outlet
h.      Mudroom-No Change
i.         Powder room- No Change
j.        Master bedroom-
                                                               i.      Added recess lighting and added extra switches to the side of the bed
                                                             ii.      Added ceiling fan rough in
                                                            iii.      Added extra outlets to closets
                                                           iv.      Bathroom upgrade for tub & shower
                                                             v.      Remove switch from outlet
k.       2nd bedroom-
                                                               i.      Ceiling light rough in
                                                             ii.      Remove switch from outlet
l.         3rd bedroom-
                                                               i.      Ceiling light rough in
                                                             ii.      Remove switch from outlet
m.    4th bedroom-
                                                               i.       Ceiling light rough in
                                                             ii.      Remove switch from outlet
n.      Laundry room-
                                                               i.      Attic access point
o.      2nd Floor bathroom-
p.      Attic-
                                                         i.      Extra outlet
q.      Other
                                                               i.      Elevation A – Full Front Porch
                                                             ii.      Elevation A – Stone to Grade

                                                            iii.      Metal Balusters